品牌保证、实力保障!工商帝雅荣获亚洲 [匠池奖] 会所创意设计奖

 

5月12日,由亚洲建筑技术联盟协会、广东鸿威国际会展集团有限公司、广东建设报、新快报联合主办,以“匠石运金,大巧不工”为主题的2021【匠池奖】泳池温泉水上乐园会所TOP10创意设计与工程案例颁奖典礼在广州·广交会展馆B区10.1馆举行。本集团香港公司荣获亚洲2021[匠池奖]会所创意设计奖。

1.jpg

本公司此次参选的项目案例“The Carmel”位于香港屯门大榄地段,是一座豪华私人住宅会所水疗工程项目。通过网络直播分享案例从设计、工艺、施工等工程落地全过程,采用网络投票和专家点评相结合的评选方式,历经热心观众和亚太建筑技术联盟协会、广东省沐浴休闲协会、国际桑拿协会专家慎重参评,工商帝雅选送项目最终因创意与施工质量脱颖而出。

The Carmel豪华会所的水疗区,位于香港青山公路大榄段尊贵海岸地段。该居住区采取低密度建筑布局,提供了48座洋房及130伙分层单位。本项目所在户依山而建,注入欧洲山城建筑概念;沿青山公路而上,高筑的城墙,壮观的大树,加上正门三幅大型垂直绿化外墙,即可观此项目,气势宏伟。

会所Club Carmel以双会所设计,分别以The Aqua及The Commune为主题,提供动静皆宜的设施。

会所共分四个区域Stone Spa, Splash Workout, Jet Pool, Waterfall Deck,以动态(水上单车,按摩浴缸),及静态(发热磁石椅,水帘瀑布),采用大量的云石,以冷色调为基调及运用水的流动性,营造高尚、悠闲的气氛。其中,云石按摩浴缸及水上运动单车的设计为全港首创,得到了发展商永泰地产的大力赞赏。

由于项目依山而建,因此水疗区以欧洲山城建筑为设计基础,配合会所整体设计。环环相扣。让人置身于天然石洞之中,感受着异国文化,故此这个水疗区又称为Stone Spa;就是石中之水疗

工商帝雅作为永泰地产指定水疗会所设计及工程承判商(Design & Build),参与了设计及施工全程,为其推荐独家代理来自西班牙AquaVia SPA世界级顶端品牌。缸身设计源自巴塞罗那,配上特制颜色意大利制的马赛克尽显高贵奢华,别有一番风味。

AquaVia Spa品牌按摩浴缸为西班牙皇室品牌,具有30年历史,是欧洲最大的按摩浴缸生产商之一。我们集团为其在内地、香港、澳门的独家代理。最近我们中标的恒大海南海花岛七星酒店水疗项目也选用了此品牌。

10.jpg

本会所选用的按摩浴缸型号分别直径3米的 Oslo及2.5米Oasis 40。工程项目从专业设计、水处理设备系统配置、运输安装及施工,后期保养维护都由工商帝雅的专案项目小组及工程专业团队,精心打造和管理。

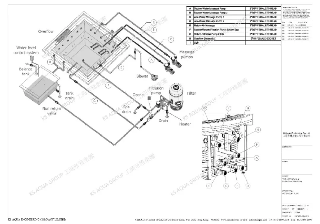
以下为工程施工设计图

13.jpg

原装欧盟进口的机电自动控制系统,需要重新编改,以符合香港的电例要求。考虑到会所需要12小时无间断开启使用(损耗率严重),增设了后备系统功能,以一用一备设定安装。

14.jpg

以下为完工后实景,对比设计效果图还原度甚高。

19.jpg

特别感谢“匠池奖”组委会、专家评审团以及为本公司投票的观众。通过此次的获奖,我们将更加有信心设计出更多优秀的作品,为中国康体消闲领域做出杰出贡献。

本工程设计除获得亚洲【匠池奖】最佳创意设计奖,还获得永泰“2020/2021年代最佳设计奖”,并在其集团网站上显示。

Reference: Wing Tai Properties